1354 Breezy Street SE
1354 Breezy Street SE
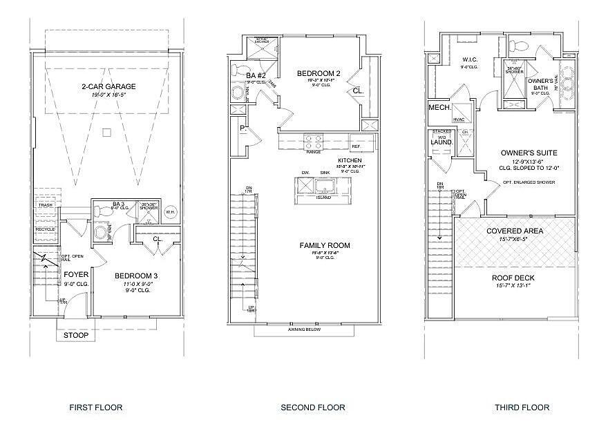
The Lindsey Sky delivers thoughtfully designed, maintenance-free living across three levels. This home offers 3 bedrooms with 3 full bathrooms, along with a partially covered third-floor deck, perfect for morning light, fabulous views, and outdoor living. The main floor features an open-concept family room and kitchen with a spacious island, creating an ideal setting for everyday living and entertaining.
Upstairs, the primary suite is a true retreat, with 12’+ ceilings, transom windows, and a spa-like ensuite bath. Convenient access to the 2-car, side-by-side garage adds ease to daily life.
**DISCLAIMER: Kindly note, the provided photos offer a glimpse into the forthcoming home currently under construction.
Amenities

Please note: visits are by appointment only.
- Sunday & Monday: 1 PM – 5 PM
- Tuesday to Saturday: 10 AM – 5 PM
FOR A HOME THAT RISES TO EVERY OCCASION
CREATE YOUR SHOWPLACE HOME
What if your home was designed around the moments that matter most?
For a limited time, choose how your home rises to every occasion. With a combined value up to $10,000, you can choose Showplace Selections that reflect how you live, from the way you gather and entertain to how you unwind and recharge.
Whether it’s elevating your kitchen, creating a more restful retreat, or adding the finishing details that make a space feel complete, this is your opportunity to create a home that’s ready for every occasion and entirely your own.
*Showplace selections eligible for qualified buyers. Must use a preferred lender.
SETTLE IN—WE’VE GOT THE BIG STUFF COVERED
Where Certainty Meets Comfort
2026 is your next chapter, and we’ve layered in the kind of steady certainty that helps you feel sheltered as you step into it—grounded, secure, and ready for what’s next.
That sense of ease comes from knowing the big things are already taken care of. Our Rate and Base Price Guarantees wrap around you like a soft throw blanket—protecting your rate during construction, giving you a free float-down if rates dip before closing, and automatically lowering your price if your floor plan’s base price drops during your build.
Together, these guarantees safeguard the two numbers that matter most—rate and price—so you can turn the next page feeling safe and supported, and envision what’s ahead the way you’d open a good book in a cozy corner: calm, hopeful, and completely at home in the moment.*
*Rate Guarantee eligible for qualified buyers. Must use a preferred lender.
FROM START TO FINISH
Looking to purchase a home but don’t know where to start? Introducing Homebase, an innovative, vibrant and dynamic space designed to educate and inspire you on your homebuying journey in a bold new way.
floor plan
Our floor plans are designed with your lifestyle in mind, featuring functional spaces, modern layouts, and the flexibility to suit your needs. Explore the details of this home and find the perfect configuration for your family and everyday living.

