The Gardenia
The Gardenia
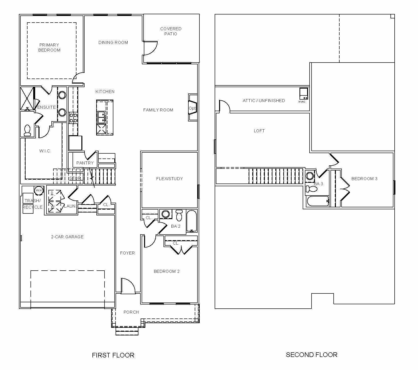
Welcome home to the GARDENIA — Main-Level living with space to grow! The Gardenia offers a thoughtfully designed home that blends the charm of ranch-style living with modern versatility.
Step through the covered front porch into a welcoming foyer that introduces the home’s elegant layout. To your right, you’ll find Bedroom 2 and a full bathroom, ideal for guests or family. Just beyond is a flexible study—a perfect spot for a home office, creative studio, or an optional third bedroom on the main floor.
At the heart of the home, an open-concept kitchen, family room, and dining area create a warm and inviting space for everyday living and entertaining. The kitchen features a large island and walk-in pantry, perfect for culinary adventures and casual conversations. The family room flows seamlessly into the dining room, which opens out to a covered patio—an ideal space for relaxing evenings or al fresco meals.
Tucked privately in the rear corner, the primary suite offers a serene retreat. With a spacious bedroom, a luxurious ensuite bathroom complete with a tiled shower, dual vanities, and an optional soaking tub, this space is made for unwinding. A generous walk-in closet completes the suite.
Convenient living continues with a mudroom, laundry area, and a 2-car garage with dedicated trash/recycle storage just off the kitchen hallway on the main level.
Upstairs, a spacious loft provides an additional living area—ideal for a media room, playroom, or home office. You’ll also find a third bedroom with its own full bathroom, offering a comfortable and private space for guests, teens, or multi-generational living.

Join the interest list
Learn more about floor plans, elevations, design features, pricing, and special incentives.
Please note: visits are by appointment only.
- Sunday & Monday: 1 PM – 5 PM
- Tuesday to Saturday: 10 AM – 5 PM
FOR A HOME THAT RISES TO EVERY OCCASION
CREATE YOUR SHOWPLACE HOME
What if your home was designed around the moments that matter most?
For a limited time, choose how your home rises to every occasion. With a combined value up to $15,000, you can choose Showplace Selections that reflect how you live, from the way you gather and entertain to how you unwind and recharge.
Whether it’s elevating your kitchen, creating a more restful retreat, or adding the finishing details that make a space feel complete, this is your opportunity to create a home that’s ready for every occasion and entirely your own.
*Showplace selections eligible for qualified buyers. Must use a preferred lender.
SETTLE IN—WE’VE GOT THE BIG STUFF COVERED
Where Certainty Meets Comfort
2026 is your next chapter, and we’ve layered in the kind of steady certainty that helps you feel sheltered as you step into it—grounded, secure, and ready for what’s next.
That sense of ease comes from knowing the big things are already taken care of. Our Rate and Base Price Guarantees wrap around you like a soft throw blanket—protecting your rate during construction, giving you a free float-down if rates dip before closing, and automatically lowering your price if your floor plan’s base price drops during your build.
Together, these guarantees safeguard the two numbers that matter most—rate and price—so you can turn the next page feeling safe and supported, and envision what’s ahead the way you’d open a good book in a cozy corner: calm, hopeful, and completely at home in the moment.*
*Rate Guarantee eligible for qualified buyers. Must use a preferred lender.
FROM START TO FINISH

Looking to purchase a home but don’t know where to start? Introducing Homebase, an innovative, vibrant and dynamic space designed to educate and inspire you on your homebuying journey in a bold new way.
floor plan
Our floor plans are designed with your lifestyle in mind, featuring functional spaces, modern layouts, and the flexibility to suit your needs. Explore the details of this home and find the perfect configuration for your family and everyday living.
exterior options

