2552 Butlers Green Circle
2552 Butlers Green Circle
Home is not yet started - Still time to choose your own selections and finishes to make this your dream home. Build time is approximately 5 - 6 months from contract.
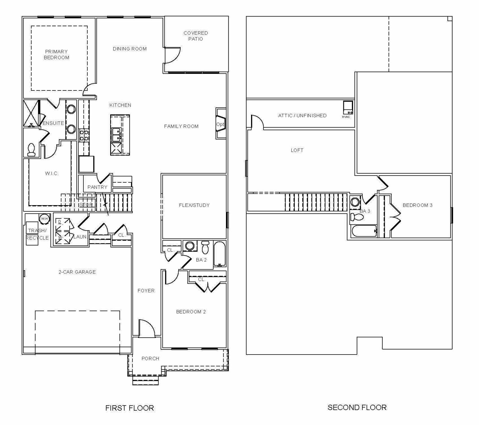
The Gardenia offers main-level living with space to grow. This home features an open kitchen, large island, walk-in pantry, and seamless living and dining areas leading to a covered patio. The private primary suite includes a tiled shower, dual vanities, and walk-in closet. A front bedroom, study (optional third bedroom), and full bath offer flexibility. Upstairs includes a loft, third bedroom, and full bath—ideal for guests or teens.
Life at Social Circle: Located in the heart of East Brainerd, and just minutes from downtown Chattanooga, Social Circle is more than a neighborhood—it’s a lifestyle. Designed to promote genuine connection and slower living, this community invites front porch conversations, spontaneous gatherings, and more unplugged moments that matter.
**DISCLAIMER: Kindly note, the provided photos are for representation purposes only to offer a glimpse into the forthcoming home to be built. Photos are for representational purposes only; fit and finish to be determined based on selections made at contract and design.
Amenities

Please note: visits are by appointment only.
- Sunday & Monday: 1 PM – 5 PM
- Tuesday to Saturday: 10 AM – 5 PM
FOR A HOME THAT RISES TO EVERY OCCASION
CREATE YOUR SHOWPLACE HOME
What if your home was designed around the moments that matter most?
For a limited time, choose how your home rises to every occasion. With a combined value up to $15,000, you can choose Showplace Selections that reflect how you live, from the way you gather and entertain to how you unwind and recharge.
Whether it’s elevating your kitchen, creating a more restful retreat, or adding the finishing details that make a space feel complete, this is your opportunity to create a home that’s ready for every occasion and entirely your own.
*Showplace selections eligible for qualified buyers. Must use a preferred lender.
SETTLE IN—WE’VE GOT THE BIG STUFF COVERED
Where Certainty Meets Comfort
2026 is your next chapter, and we’ve layered in the kind of steady certainty that helps you feel sheltered as you step into it—grounded, secure, and ready for what’s next.
That sense of ease comes from knowing the big things are already taken care of. Our Rate and Base Price Guarantees wrap around you like a soft throw blanket—protecting your rate during construction, giving you a free float-down if rates dip before closing, and automatically lowering your price if your floor plan’s base price drops during your build.
Together, these guarantees safeguard the two numbers that matter most—rate and price—so you can turn the next page feeling safe and supported, and envision what’s ahead the way you’d open a good book in a cozy corner: calm, hopeful, and completely at home in the moment.*
*Rate Guarantee eligible for qualified buyers. Must use a preferred lender.
FROM START TO FINISH

Looking to purchase a home but don’t know where to start? Introducing Homebase, an innovative, vibrant and dynamic space designed to educate and inspire you on your homebuying journey in a bold new way.
floor plan
Our floor plans are designed with your lifestyle in mind, featuring functional spaces, modern layouts, and the flexibility to suit your needs. Explore the details of this home and find the perfect configuration for your family and everyday living.

