The Grapevine
The Grapevine
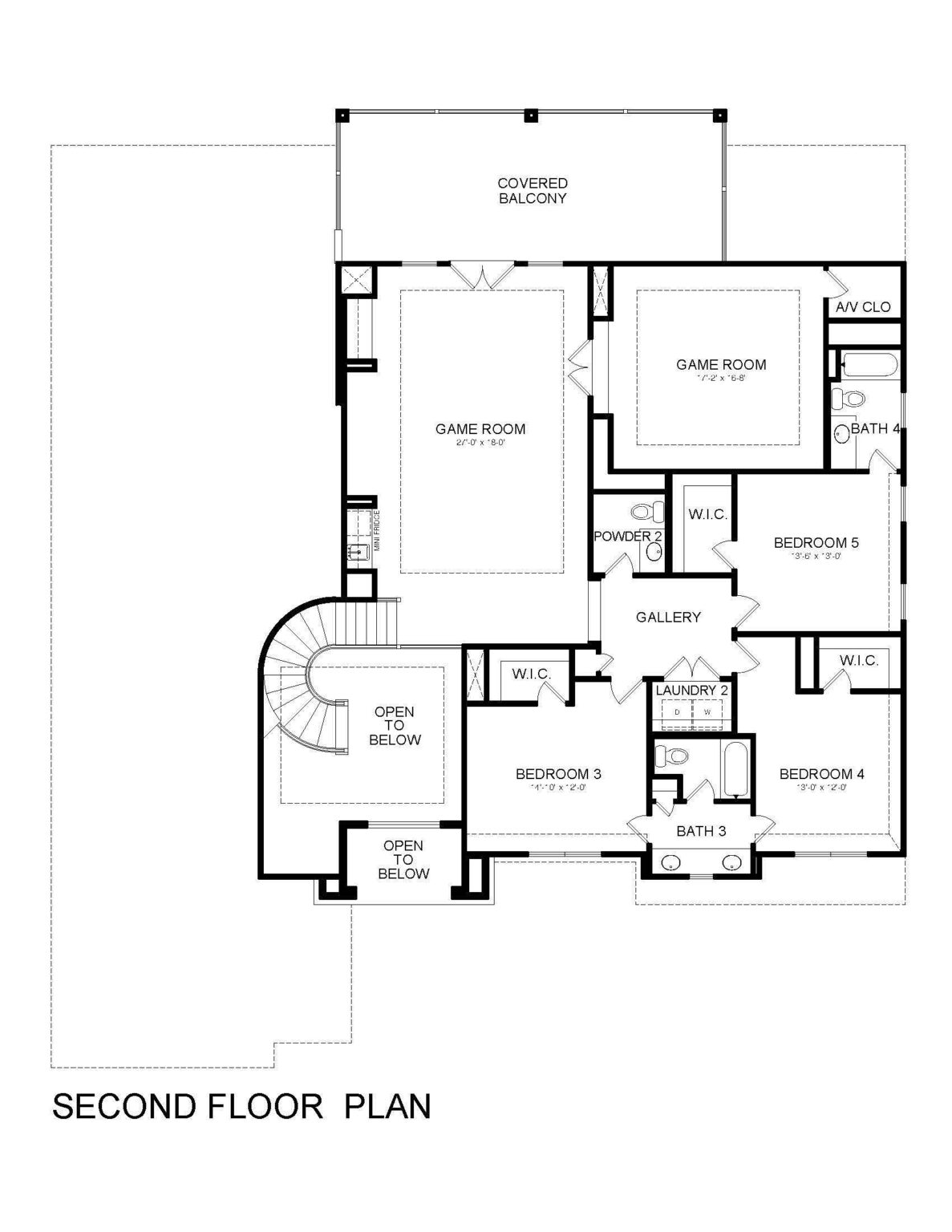
The Grapevine plan is a showstopping 5,462 sq. ft. floorplan that makes a bold first impression. The grand curved staircase sets the tone as you enter, leading into an open-concept living space anchored by a chef’s dream kitchen with Electrolux® appliances, quartz countertops, and a spacious walk-in pantry. A private primary suite offers the ultimate escape, complete with a spa-style bath, freestanding tub, and a walk-through designer closet that connects directly to the laundry room. With a guest bedroom and full bath also on the main floor, the layout supports both luxury and livability. Upstairs, five more bedrooms surround dual game rooms, a media room, and a stunning covered balcony—creating endless opportunities for entertaining, relaxing, or just living large. A wine grotto, two garages, Energy Star® efficiency, and tech-savvy upgrades like surround sound prewiring and CAT6 internet cabling seal the deal. Grapevine is more than a home—it’s a statement.

Join the interest list
Learn more about floor plans, elevations, design features, pricing, and special incentives.
- Sunday – Monday: 12 PM – 6 PM
- Tuesday – Saturday: 10 AM – 6 PM
Why Settle?
With Empire Homes, you get $50,000 more in standard features without spending more each month. Plus, low rates and closing costs available on select homes for a limited time.
*Specifications, terms, prices, features, and availability are subject to change without notice. Please see a sales representative for more details. E.&O.E.
DISCOVER THE DIFFERENCE
floor plan
Our floor plans are designed with your lifestyle in mind, featuring functional spaces, modern layouts, and the flexibility to suit your needs. Explore the details of this home and find the perfect configuration for your family and everyday living.
exterior options
interior design
Our interior design options let you customize your space with both style and function. Explore a variety of finishes, colors, and materials at our Design Center during your design appointments to create the home you’ve always imagined. Our expert Design Consultants will guide you throughout the process.
mortgage calculator
Shopping for a new home, but unsure what you can afford? Use our mortgage calculator below to see your options.
