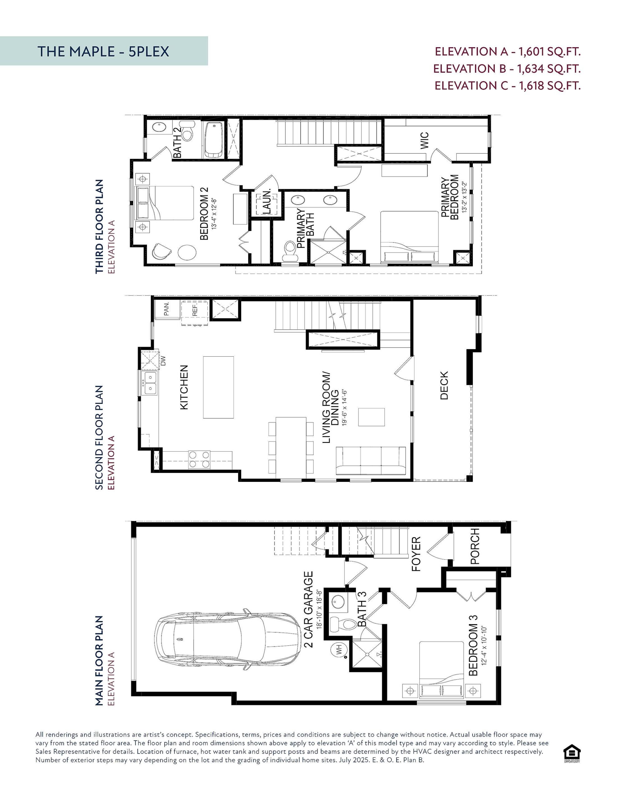
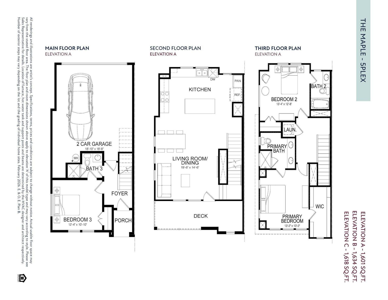
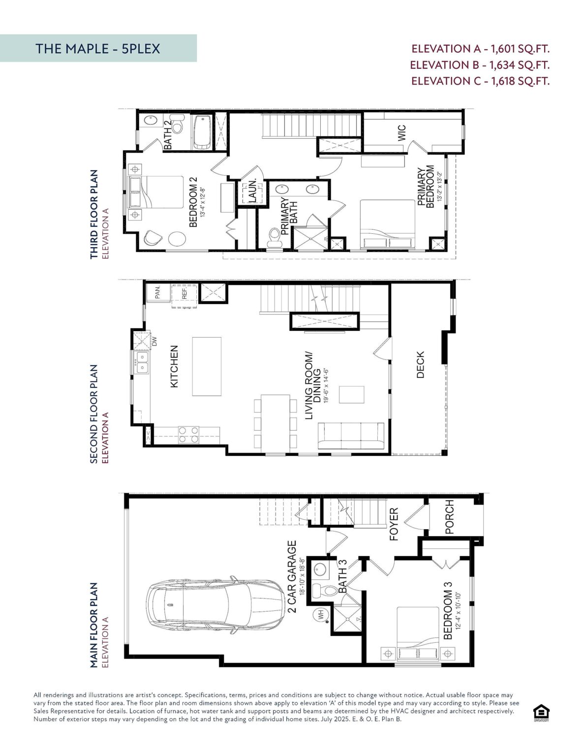
The Maple
The Maple
The Maple floorplan offers 1,598 sq. ft. of thoughtfully designed, three-story living with a focus on flexibility and modern convenience. The main floor features a private secondary bedroom with its own full bath—perfect for guests, roommates, or a home office—alongside a two-car garage and welcoming foyer. The second level opens into a spacious kitchen and an airy living/dining area that flows seamlessly onto a private deck, creating an ideal space for entertaining or relaxing. On the third floor, the primary suite includes a generous walk-in closet and a well-appointed bath, while an additional bedroom and full bath provide extra comfort. A centrally located laundry area adds convenience to everyday routines. With its smart layout and contemporary style, the Maple is designed for those who want low-maintenance living without sacrificing space or functionality.
Virtual Tours

Join the interest list
Learn more about floor plans, elevations, design features, pricing, and special incentives.
Why Settle?
With Empire Homes, you get $50,000 more in standard features without spending more each month. Plus, low rates and closing costs available on select homes for a limited time.
*Specifications, terms, prices, features, and availability are subject to change without notice. Please see a sales representative for more details. E.&O.E.
DISCOVER THE DIFFERENCE
floor plan
Our floor plans are designed with your lifestyle in mind, featuring functional spaces, modern layouts, and the flexibility to suit your needs. Explore the details of this home and find the perfect configuration for your family and everyday living.
exterior options
interior design
Our interior design options let you customize your space with both style and function. Explore a variety of finishes, colors, and materials at our Design Center during your design appointments to create the home you’ve always imagined. Our expert Design Consultants will guide you throughout the process.
mortgage calculator
Shopping for a new home, but unsure what you can afford? Use our mortgage calculator below to see your options.
