The Starling
The Starling
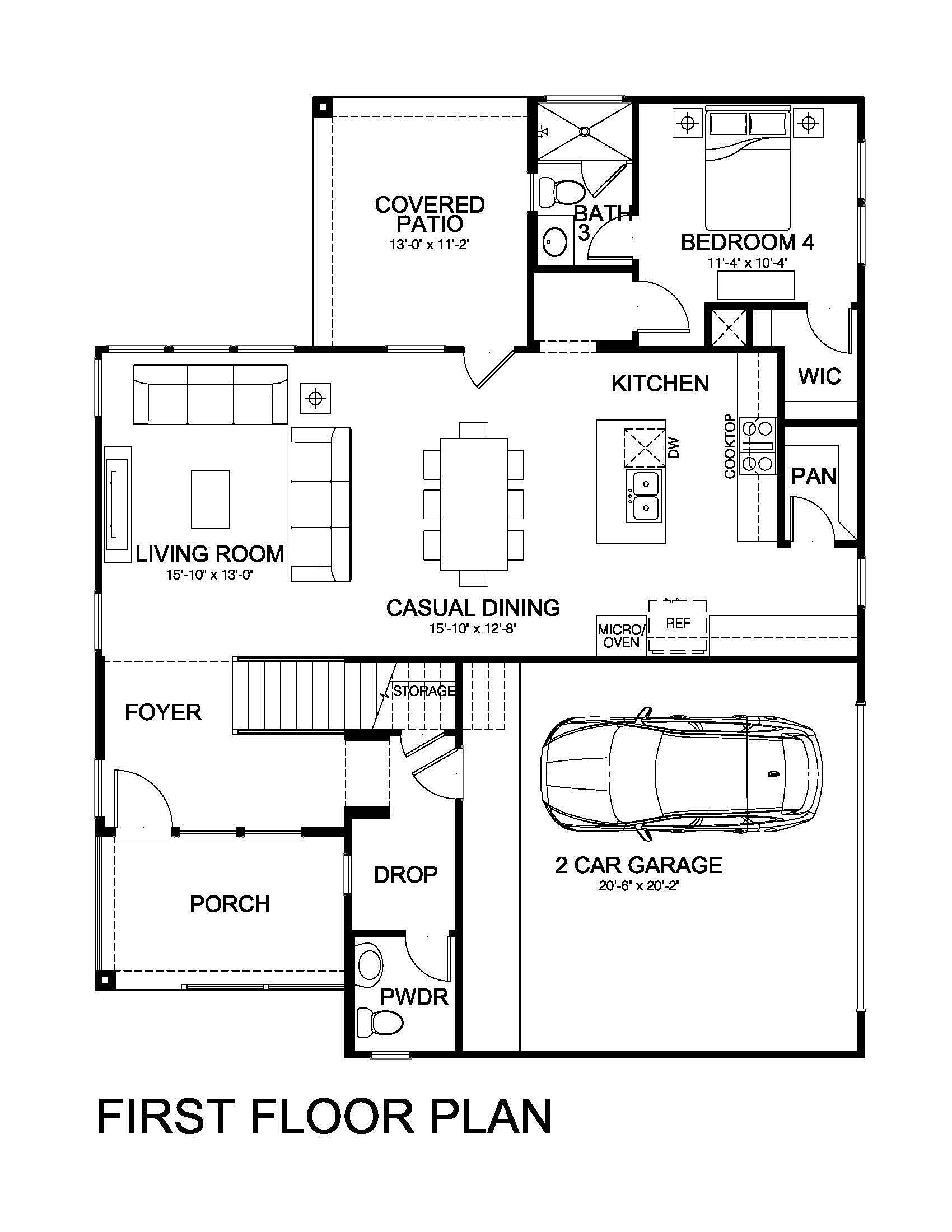
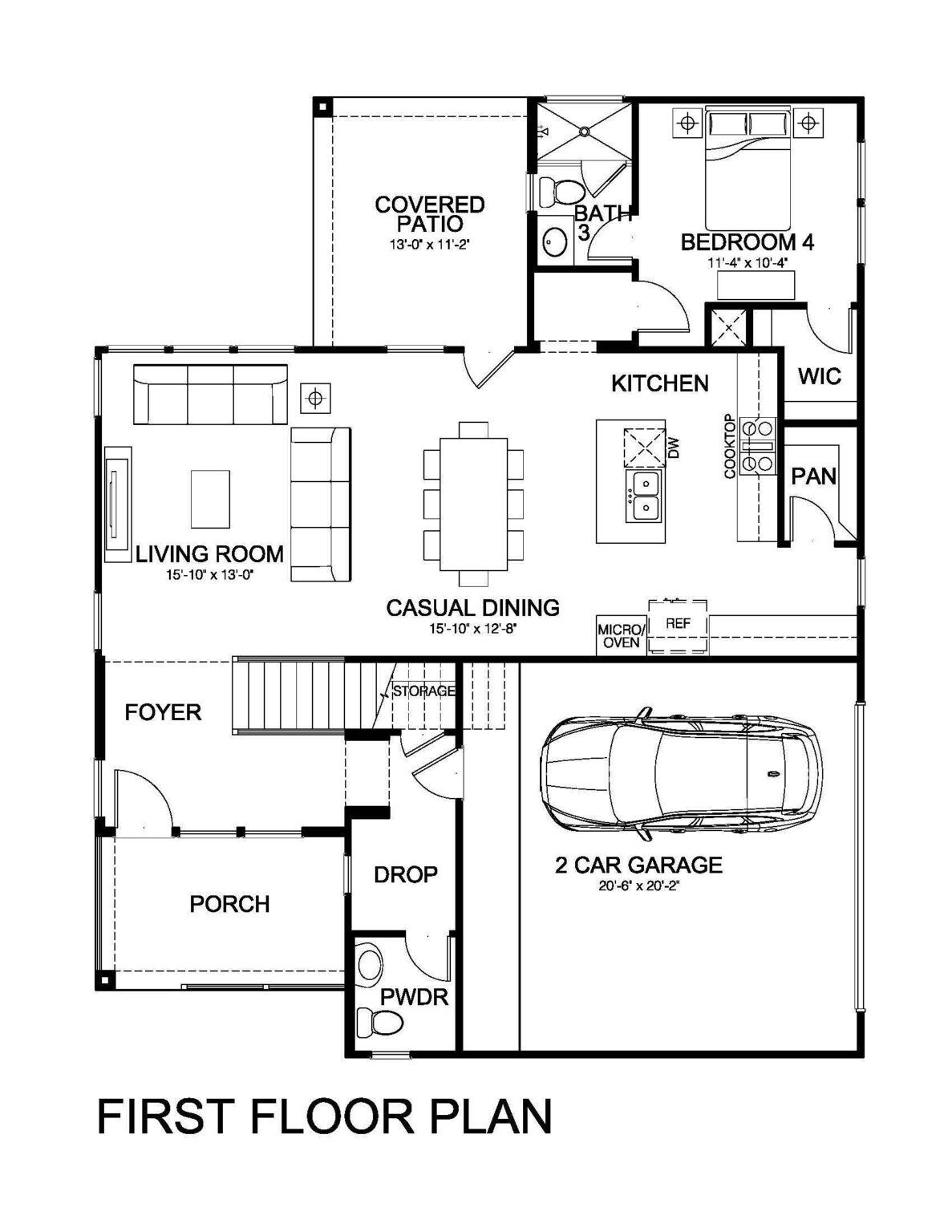
The Starling offers 2,273 square feet of beautifully planned living space with four bedrooms, three and a half bathrooms, and plenty of room to grow. The main floor is anchored by a spacious open-concept kitchen with a walk-in pantry and oversized island, flowing into a bright casual dining area and a welcoming living room with easy access to a covered patio. A private downstairs suite—complete with its own full bath—is perfect for guests or multigenerational living. Upstairs, the primary suite features dual walk-in closets and a spa-inspired en suite bathroom, while two additional bedrooms enjoy their own walk-in closets and a shared bath. A generous loft and second-floor laundry room offer extra convenience and space for everyday living. With high-end finishes like quartz countertops, Energy Star® efficiency, luxury vinyl plank flooring, and designer hardware, this plan embodies the elevated living standard of Indigo.

Join the interest list
Learn more about floor plans, elevations, design features, pricing, and special incentives.
Don’t Settle for Less
Get $50,000 in Standard Features—Already Included.
Opportunities like this don’t last. Right now, with Empire Homes, you can get $50,000 more in standard features, without increasing your monthly payment. Plus, enjoy low rates and closing cost incentives on select homes, available for a limited time.
Make your move while the offer—and the homes—are still available.
*Specifications, terms, prices, features, and availability are subject to change without notice. Offers and promotions are contingent upon using Empire’s preferred lender. Please see a sales representative for more details. E.&O.E.
floor plan
Our floor plans are designed with your lifestyle in mind, featuring functional spaces, modern layouts, and the flexibility to suit your needs. Explore the details of this home and find the perfect configuration for your family and everyday living.
exterior options
mortgage calculator
Shopping for a new home, but unsure what you can afford? Use our mortgage calculator below to see your options.
