The Alexander
The Alexander
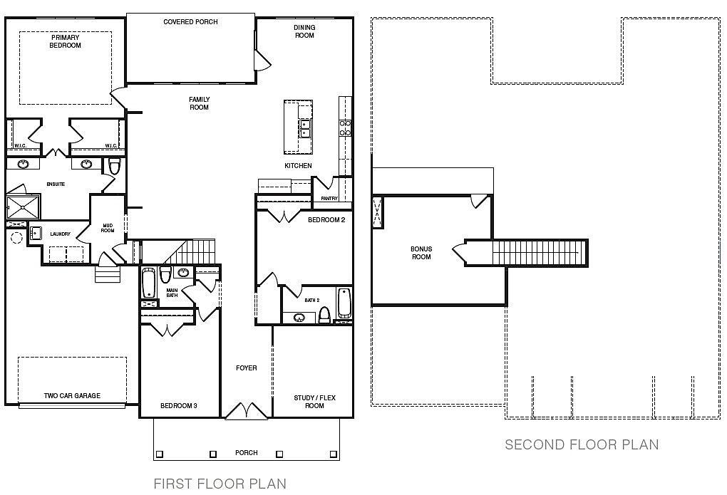
Enjoy open-concept living with kitchen centrally located in between the spacious family room and dining area, perfect for entertaining. Large walk-in pantry. Also located on the main level is the owner’s suite offering two large walk-in closets. Elegant owner’s bathroom features double vanities and oversized walk-in shower. Secondary bedrooms offer ample closet space. Study/flex room providing a home office. Bonus room upstairs offers added living space with the option for a fourth private bedroom and bathroom. Two-car side entry garage with ample room for storage.
**DISCLAIMER: Kindly note, the provided photos offer a glimpse into the forthcoming home currently under construction.
Virtual Tours

Join the interest list
Learn more about floor plans, elevations, design features, pricing, and special incentives.
Please note: visits are by appointment only.
- Sunday & Monday: 1 PM – 5 PM
- Tuesday to Saturday: 10 AM – 5 PM
Move Before Summer
Half Off Up to $100K in Design Dollars
We currently have a limited number of quick move-in homes available across our communities — and they won’t last long. During our Spring Savings Event, select homes feature flexible incentives designed to help you secure your new home now. Contracts must be written by March 31.
TOUR OF NEW HOMES
SUNDAY, MARCH 22 AND SUNDAY, MARCH 29
Spring savings just got better! Tour our beautifully designed homes and mention ‘Refrigerator’ to the community’s Onsite Sales Consultant during your visit. Sign a contract within 7 days and receive a FREE refrigerator, installed and ready to use.
Offer valid for qualified buyers who use a preferred lender.
Where Certainty Meets Comfort
2026 is your next chapter, and we've layered in the kind of steady certainty that helps you feel sheltered as you step into it—grounded, secure, and ready for what's next. That sense of ease comes from knowing the big things are already taken care of. Our Rate and Base Price Guarantees wrap around you like a soft throw blanket—protecting your rate during construction, giving you a free float-down if rates dip before closing, and automatically lowering your price if your floor plan's base price drops during your build. Together, these guarantees safeguard the two numbers that matter most—rate and price—so you can turn the next page feeling safe and supported, and envision what's ahead the way you'd open a good book in a cozy corner: calm, hopeful, and completely at home in the moment.*
*Rate Guarantee eligible for qualified buyers. Must use a preferred lender.
GET IN TOUCH
Looking to purchase a home but don't know where to start? Introducing Homebase, an innovative, vibrant and dynamic space designed to educate and inspire you on your homebuying journey in a bold new way.
LEARN MORE
floor plan
Our floor plans are designed with your lifestyle in mind, featuring functional spaces, modern layouts, and the flexibility to suit your needs. Explore the details of this home and find the perfect configuration for your family and everyday living.
exterior options

